Immobili residenziali

Binasco 

Descrizione


Via Borgomaneri
Binasco

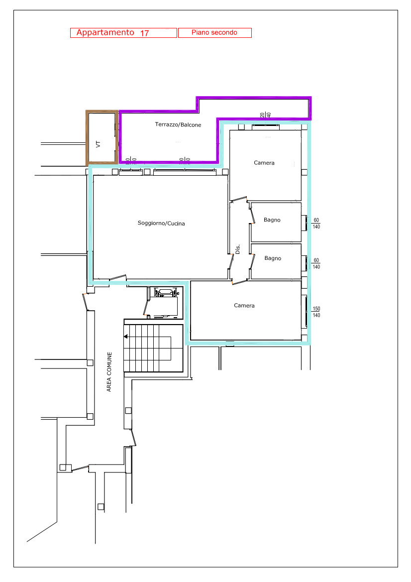
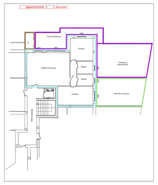
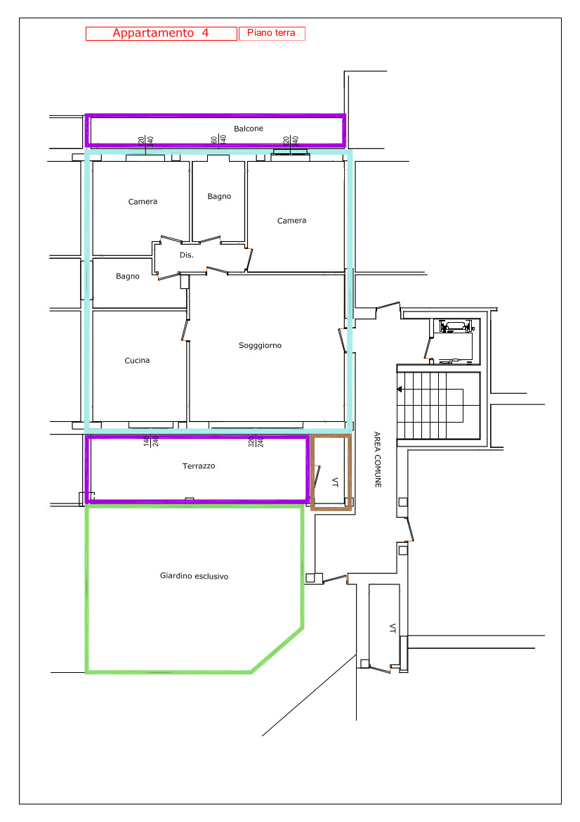
In costruzione a BINASCO, splendidi appartamenti di varie metrature con ampi terrazzi e giardini. Residenza “ALTHEA". Costruiti in classe energetica 'A3', gli appartamenti presentano varie soluzioni: cucina a vista o cucina abitabile separata, doppio servizio, ripostiglio, giardini privati o ampi terrazzi e balconi. Su ogni balcone o terrazzo sarà presente un vano tecnico per l'alloggiamento degli impianti tecnologici. La palazzina, dotata di ascensore, si sviluppa su 3 livelli con 6 appartamenti per ogni piano. Al piano interrato troviamo, oltre alle cantine, 18 autorimesse e 14 posti auto di proprietà. La costruzione sarà realizzata con materiali di pregio, i serramenti esterni saranno in pvc con zanzariere, le tapparelle esterne saranno in alluminio con chiusura a lamelle orientabili elettrificate e le porte interne potranno essere scelte in base alle proprie esigenze tra numerosi tipi di essenze e colori; anche i pavimenti ed i rivestimenti saranno disponibili in base al capitolato in un'ampia gamma di colori e formati. Il livello di confort e di risparmio energetico sarà garantito dal sistema di riscaldamento a pannelli radianti a pavimento, dall'impianto fotovoltaico e dalla pompa di calore che produrrà anche l'acqua calda sanitaria; non per ultima troveremo un'alta coibentazione delle pareti esterne. Ogni abitazione sarà dotata anche di impianto di ventilazione meccanica controllata con recuperatore di calore che garantirà il ricambio dell'aria all'interno degli ambienti. Ogni appartamento avrà la gestione autonoma degli impianti e delle proprie utenze. Per ulteriori informazioni vi aspettiamo presso i nostri uffici senza impegno. Prezzi a partire da € 255.000, 00.








Dettagli

Visite: 2137
Contratto: vendita
Tipologia: trilocale
Locali: 3
Bagni: 1
Posti auto: no
Box: 1
Riscaldamento: pompa di calore
Anno: 2025
Piano: 1 di 3
Balcone: si
Terrazzo: si
Giardino: privato ( m2)
Stato al rogito: libero
Spese condominiali mensili: 0 €
Classe energetica: A3 (0 kWh/m2/a)
Codice: AP3-714
Superficie: 100 m2

Prezzo: 255.000 € Chiama ora Whatsapp

×